Contactez-nous
Route de Spa 20, Malmedy, Belgique
VENDU
Contactez-nous























Estate & Value vous propose cette villa à l’architecture élégante avec ses façades de pierre bénéficiant d’une magnifique vue sur la campagne. Ce bien est situé dans un environnement calme et verdoyant, à quelques minutes du centre de Malmedy et des accès autoroutiers.
Composé de deux habitations avec entrées séparées, il offre de multiples possibilités : maison kangourou, logement touristique, profession libérale…
La partie principale dispose d’un vaste séjour (60 m²) très lumineux avec un foyer à bois, d’une cuisine équipée, d’une buanderie et d’une toilette invité. À l’étage se trouvent une spacieuse mezzanine idéale pour un bureau ou un espace lecture, deux chambres et une salle de bain.
L’autre partie se compose d’un séjour inondé de lumière dominant la nature environnante, d’une seconde cuisine, d’une chambre et d’une salle de douche.
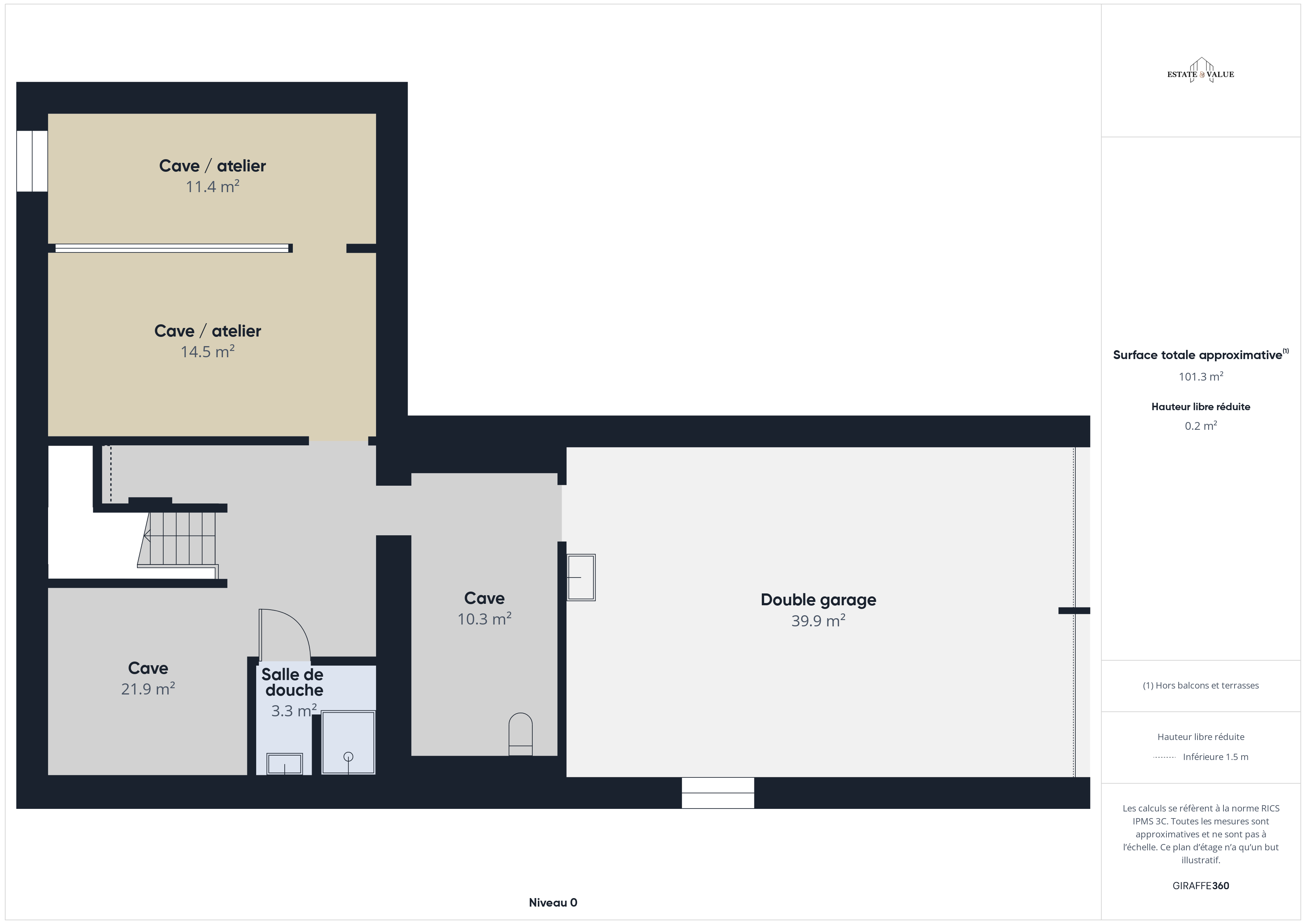
Quatre caves avec salle de douche et toilette, un double garage avec portes sectionnelles motorisées, un vaste jardin arboré et une belle terrasse en pierre complètent cette charmante propriété.
Panneaux photovoltaïques (14) et PEB C pour une consommation énergétique optimale.
Contactez-nous
1.050.000€
Bien d’exception avec espace dédié à la culture
Owning a home is a keystone of wealth… both financial affluence and emotional security.
Suze Orman